枚方市津田東町三丁目 戸建
価格:980万円
ギャラリー
物件詳細
| 物件名 | 枚方市津田東町三丁目 戸建 |
|---|---|
| 種類 | 戸建 |
| 価格 | 980万円 |
| 築年数 | 1979年 |
| 住所 | 枚方市津田東町三丁目 |
| アクセス | JR片町線「津田」駅よりバス7分バス停「津田病院前」より徒歩1分 |
| 構造 | 木造・鉄筋コンクリート造瓦葺 |
| 専有面積 | 104.95㎡ |
| 総階数 | 3階 |
| 総戸数 | 1戸 |
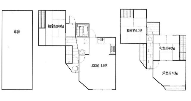
| 間取り | 4LDK |
| 管理費 | - |
| 修繕積立金 | - |
| 向き | 北 |
| バルコニー面積 | - |
| その他面積 | 土地面積:78.31㎡ (建ぺい率60%/容積率200%) |
| 建物構造 | 木造・鉄筋コンクリート造瓦葺 |
| 駐車場 (月額料金) | 車庫あり |
| 土地権利 | 所有権 |
|---|---|
| 土地 (敷金、保証金) | - |
| 国土法届出 | 不要 |
| 近道状況 | - |
| 用途地域 | 第一種中高層住居専用地域 |
| 地勢 | 高台 |
| 都市計画 | 市街化区域 |
| 現況 | 空家 |
| 引渡し | 相談 |
| 取引態様 | 売主 |
| 棟総戸数 | - |
| 管理形態 | - |
| 管理会社(管理組合有無) | - |
| その他条件 | - |
| 取引条件の有効期限 | - |
| 備考 | 令和7年9 月リフォーム完成! 各和室畳新調/洗面台新調/クロス張替/CF上貼/洗面所アコーディオンカーテン設置など 公営上水道/浄化槽/集中プロパンガス |
担当者のコメント
収益物件にもおすすめです♪ 令和7年美装工事済!